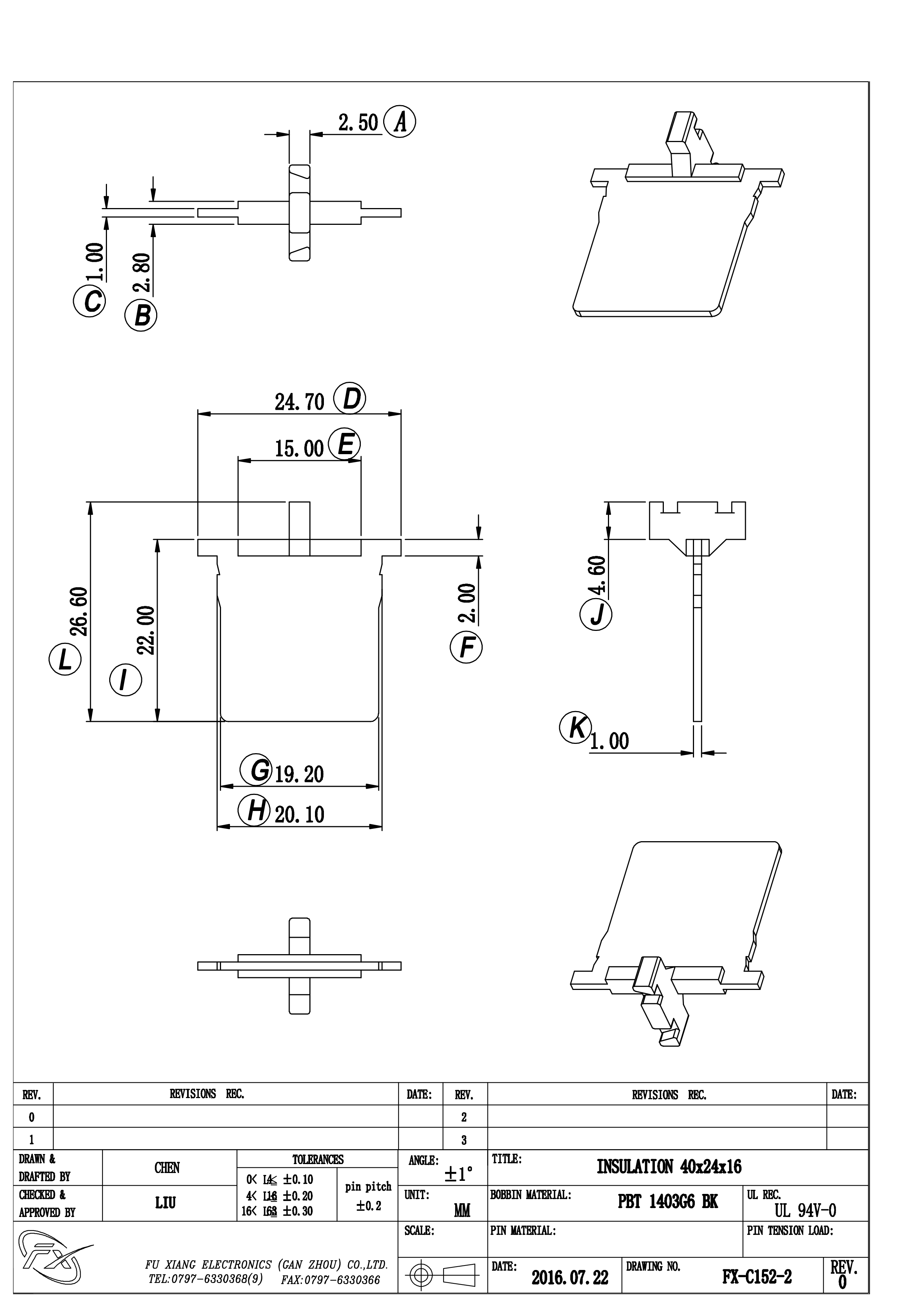
FX-C152-2